

Co-Living Rooming House
STONE HORIZON
Stone Horizon is the leading company creating rooming houses serve both the community and the investors. We are lucky to have their trusted allowing us design many of their Class 1B Rooming House projects, and each one reinforces why this building type is truly unique.
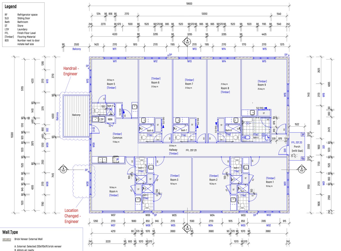
Rooming houses priority efficiency, simple building form, rational layouts, and construction methods that keep build cost low while ensuring every room remains comfortable, safe and compliant.
Rooming Houses Done Right — From Access to Amenity




Safety is equally critical. A rooming house is shared by people who may not know each other, so the design must support safe movement and behaviour throughout the building. Corridors, compliant egress paths, fire-safety measures, and emergency lighting all form part of this consideration.
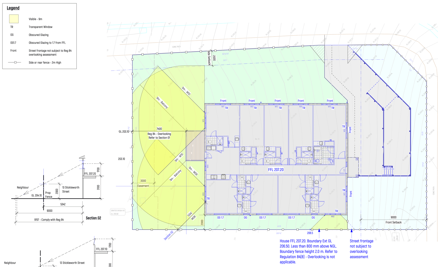
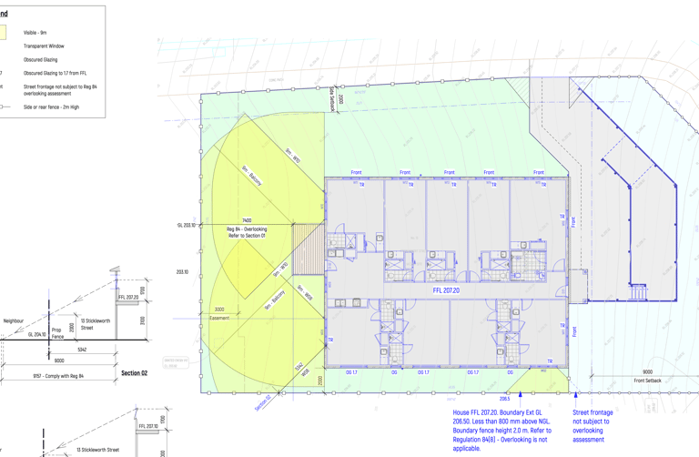
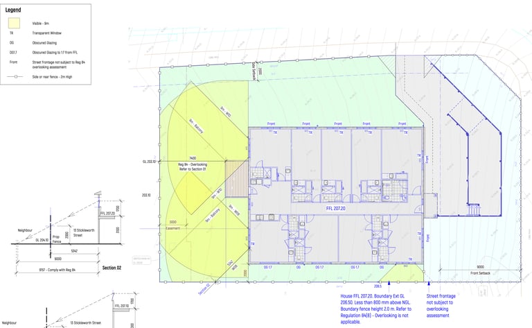
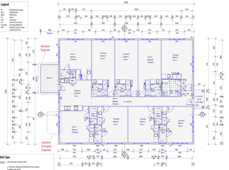
Council Rooming House Local Laws also dictate habitability standards — some alters the requirements of minimum room sizes, kitchenettes, natural ventilation, daylight, privacy treatments, acoustic separation, and amenity requirements under both the NCC and the Residential Tenancies Act. These nuances vary by municipality, and part of our role is to knit all of these requirements into one clear, coordinated, and fully compliant package.


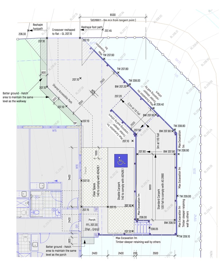
Designing a compliant rooming house starts with accessibility done properly. Every project must meet the NCC access provisions and (where applicable) AS1428.1, ensuring an unbroken accessible path from the site boundary all the way to the building entrance.
That means correct gradients for ramps, landings, handrails, turning circles, door widths, tactile indicators, and ensuring people of all mobility levels can safely enter and navigate the site without barriers.
