Our PRICE & Quality
Architectural services, design quality, and documentation can differ greatly from one consultant to another. This often leaves clients uncertain — feeling as though they must proceed blindly and simply hope for the best.
Unlike building work, where the Guide to Standards & Tolerances gives you something concrete to measure... Architectural drawings don't have an equivalent benchmark. The difference between one architect’s documentation and another can be substantial — and most clients only discover that gap once they’re already deep into the project… or deep with the consequences.
That’s why we put this page together to show the quality we will deliver for your project, so you can confidently track deliverables throughout.
If you’re only interested in the price, please feel free to skip the information and go straight to the bottom of the page.
1. Your site & Concept
Your successful, high-yield project is meticulously engineered from a deep, forensic understanding of the land it sits upon.
"If I had an hour to chop down a tree, I’d spend the first 45 minutes sharpening the axe." — Abraham Lincoln
We will walk your site to absorb its unique topography, solar orientation, and the established rhythm of the neighborhood character. By cross-referencing this tactile experience with an exhaustive analysis of local council regulations, zoning overlays, and title restrictions, you uncover hidden opportunities and avoid major pitfalls from day one; and lay the groundwork for an exceptional design and a frictionless approval.
Your site and concept are calculated, strategic responses. The sketch maximizes your project goals, capturing all the opportunities that lead to premium results.
Sample 3D Model
Recommended software for viewing:
IPad - 3D PDF Reader
PC/Mac - Adobe Acrobat Reader




2. Your Design CAD & Visualised
Time is your most expensive line item. A one-month delay on a $2M project can easily drain $10,000 in bank interest costs alone.
The most common cause of these expensive delays? Late design changes. When stakeholders walk through the active construction site and suddenly realise the 2D plan didn’t capture their actual needs… like, where’s the little baby going to study when he’s in Year 8, perhaps…
"People don't know what they want until you show it to them." — Steve Jobs
Your 3D visualisation translates complex technical drawings into presentations that every stakeholder and the whole family can instantly understand. It invites crucial feedback, secures complete alignment from all decision-makers, and catches missing details.
Sample Design package




3. Planning Permit /
Development Approval
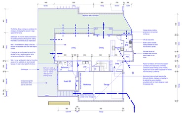
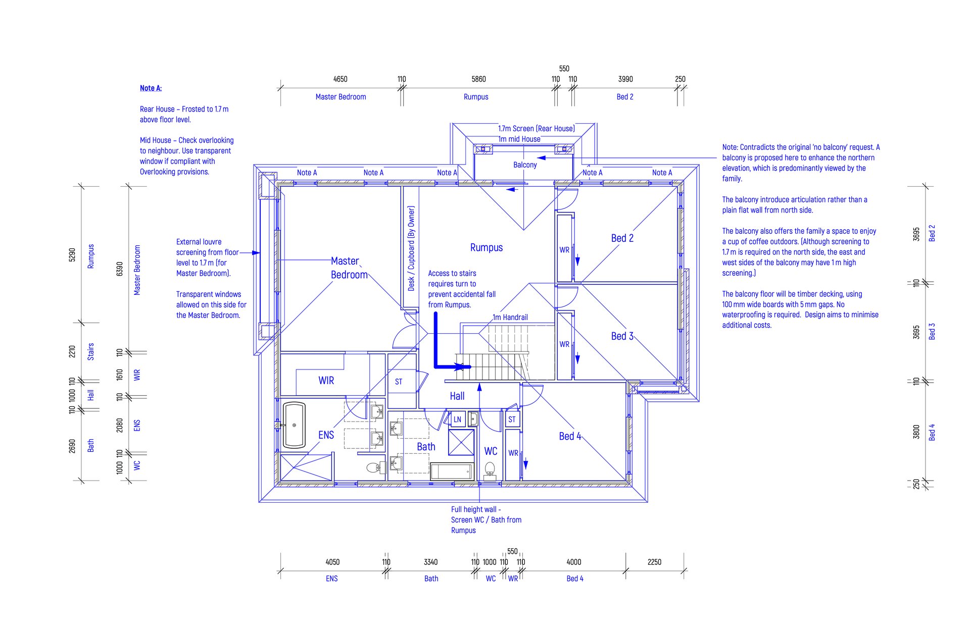
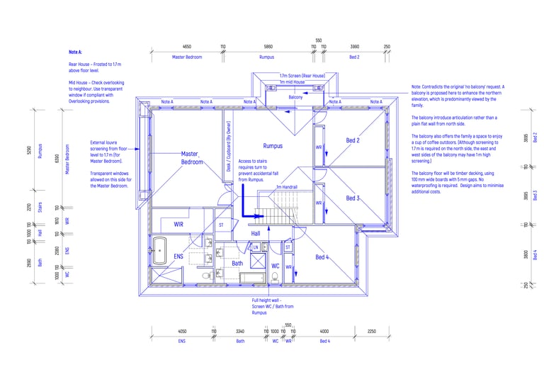
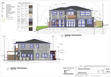
Sample Planning Permit Drawing
This is where your beautiful (and profitable, for the developers ☺️) design actualise into the real world.
Securing the approval is a technical and strategic process. In simple terms, you’re breaking down the full Planning Scheme rule by rule relevant to the design, and demonstrating, for each and every single rule, that the design complies…via carefully crafted set of information, both in drawings and written explanation.
Well, it’s difficult, but you can leave that with us.
When you present everything in a way that is easy to follow, well-reasoned, and technically sound, you get your approval quickly.








Sample Planning Report
Town planning report is about showing that someone else has already built “that” (what you designed) legally. In common law, people are allowed to do anything as long as it’s legal, which is why your application should be approved.
For larger projects, or where you’re pushing the boundaries, an experienced Town Planner should take the lead. They bring deep knowledge of past court decisions and precedents, especially in the details and very fine distinctions within specific rules and how those were applied in past cases.
This gives them far more tools to justify variations to the rules, as well as a clear understanding to advise you and us on how to structure the design around the item(s) seeking variation approval. That is, helping you build the case that you are effectively proposing an “identical” item to a previously approved court case.
For smaller projects, or developments seeking only minor variations, a good Architect is often the most efficient lead. They can prepare the planning report that “glues” the entire submission together — exactly as demonstrated in our sample report.




4. Building Permit /
Construction Certificate
Sample Building Permit Drawing
Construction is the most expensive phase of your project. The goal in the Building Permit is to produce documents that are easy to build, perfectly waterproof, and eliminate on-site hassle to maximise efficiency.
Ever wonder how good builders save 20% on the individual tradies when building their own developments?
It isn’t by squeezing their tradies' margins — that approach doesn’t last. It damages relationships, compromises quality, and makes it unlikely that tradies will return to fix issues if required.
It’s because they flawlessly manage the building works on site. Yes, it’s their own money.
"Quality is never an accident; it is always the result of high intention, sincere effort, intelligent direction, and skillful execution." — William A. Foster
What if your documentation saved the builder time, so they can spend it on management? Perhaps you can ask for a 5% saving?








