

Warehouse
National BLVD, Campbellfield
A fully developed 3D model allowed the client to “walk” their future workplace before a single line was approved. The massing, facade relationships, interior workflow, sightlines and operational flows were all explored and refined visually. This upfront clarity removed uncertainty, aligned stakeholders, and created a shared understanding of how the building would function in daily use.


Design That Works as Hard as You.




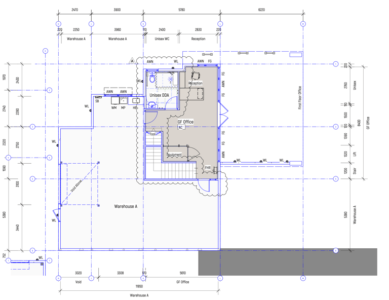
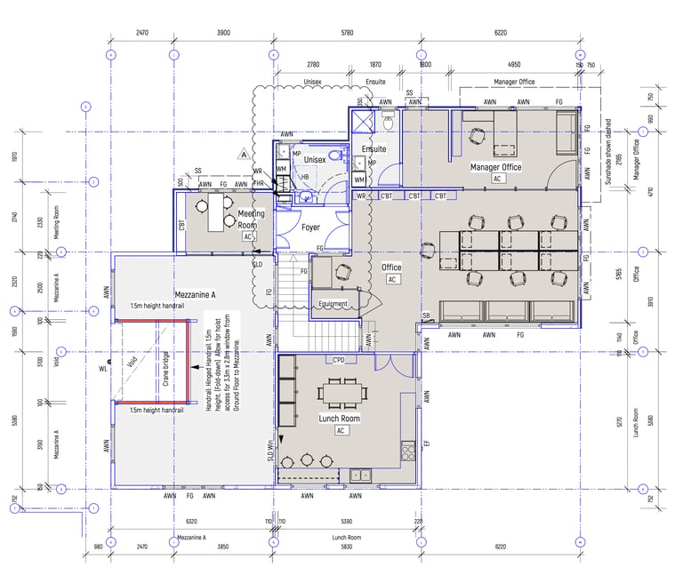
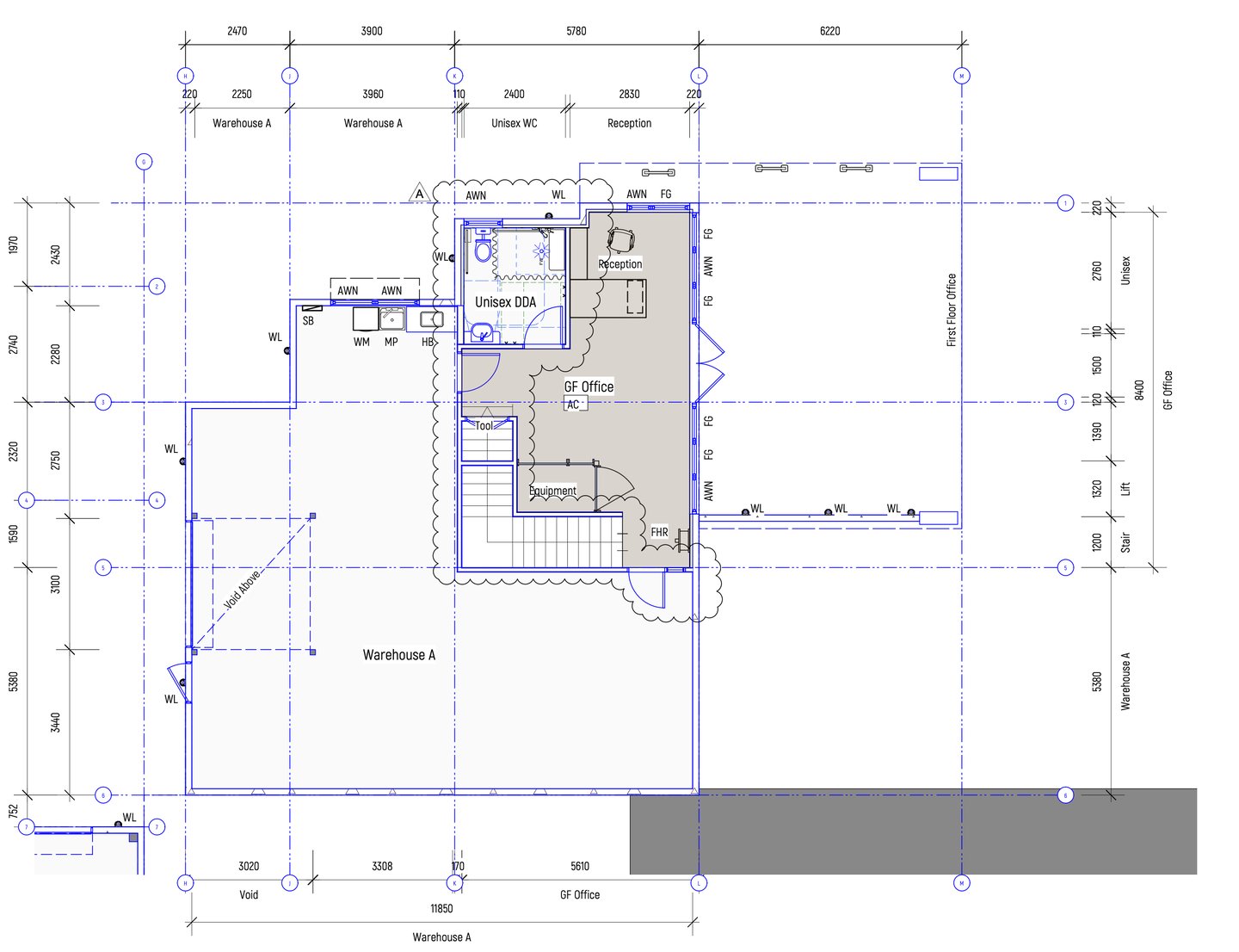
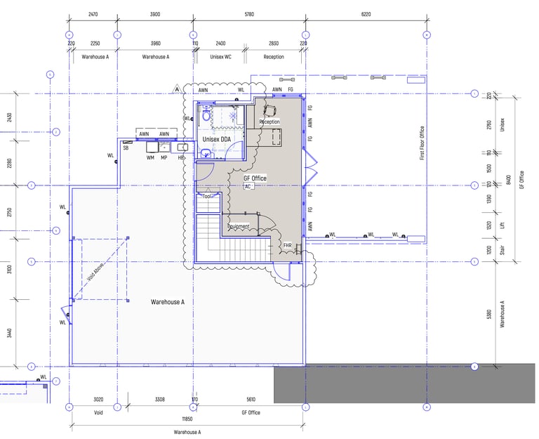
Comprehensive documentation underpins the project’s efficiency. Clear wall build-ups, glazing types, structural interfaces, vehicular access requirements, and emergency egress notes are all coordinated to minimise questions during assessment. This depth of information not only streamlines planning approval, but also lays a solid foundation for smoother tendering and construction phases later.


